icon

Overview

Welcome To Mantri Commercio, Bengaluru

Welcome To Mantri Commercio, Bengaluru
Mantri Commercio is strategically located on the Marathalli - Sarjapur Outer Ring Road, Bangalore which has always been the preferred destination for corporates. The Project consists over 2 Office blocks of ground plus 5 floors each with a 30,000 square feet landscaped food court area and ample green areas providing lung space to occupiers.This state of the art project also houses amenities including bus bays, cafes, ATMs and many more

image

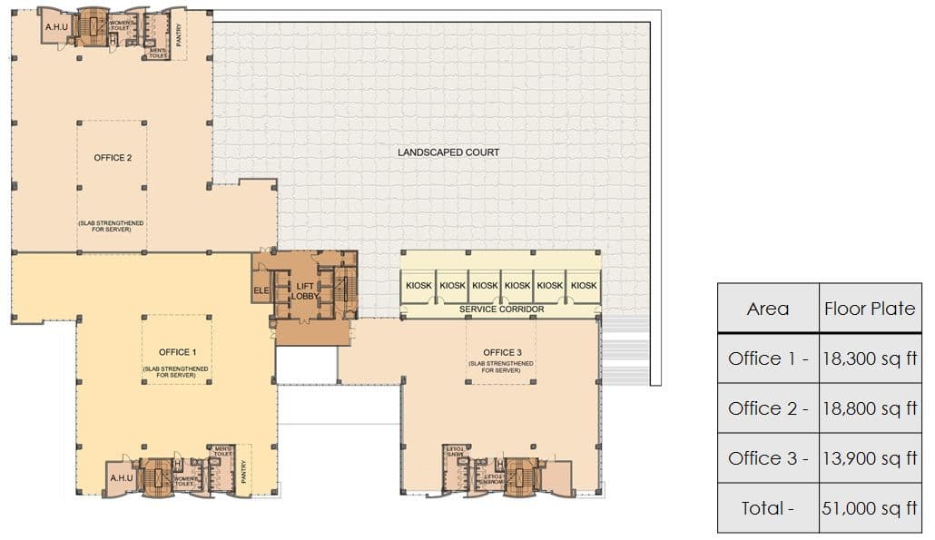
Floor Plans

PROJECT SPECIFICATION

icons

Design Standards

  • The development is designed to comply with National Building Codes (NBC) and standards.
icons

Civil

  • RCC framed structure as per Seismic Zone II Flat slab system for Typical floors and Panel Slab system for the lower floors
icons

Floor Loading

  • Typical floor is designed for a load of 400 Kg/sq m with designated areas on the floor strengthened to 750 Kg/sq m.
icons

Floor to Floor Height

  • 4.2m
icons

Column Grids

  • 10.8m x 10.8m
icons

Passenger Lifts

  • Lift Make : Schindler
icons

Service Lifts

  • Lift Make : Schindler
icons

Electrical & DG

  • Power of 0.8 KVA per 100 sq ft of Leasable Area for office load
icons

Power Back-up

  • 100% power backup with DG
icons

Car Park

  • 1 car park for every 550 sq ft
icons

Facade

  • Granite cladding /GFRC/Texture paint as per architects design.
icons

Fire Fighting

  • Fire Fighting and Fire Protection systems as per NBC norms
icons

Entrance Lobby & Lift Lobby

  • Entrance Lobby: Granite /Italian marble for walls and floor
icons

Communication

  • Network Service provider room located at basement floor
icons

HVAC

  • Energy efficient water cooled chiller plant with High side work up to & inside AHU rooms.
icons

BMS Feature

  • Control & Monitoring feature enables BMS feature